edificio TETRIS Zaragoza (proyecto)

TETRIS
 
CONCEPCIÓN: La intervención parte del interés por conseguir una relación fluida, con movimiento, no repetitiva e interesante de los espacios. Esto es aplicable tanto a la relación de los edificios con el entorno, a la de los edificios entre ellos como a la de los espacios dentro de los edificios.
Se busca una adaptación al terreno en el modo de implantación del conjunto:
La ocupación residencial se divide en cuatro volúmenes (dispuestos en dos pares) y se limita su altura para reducir el impacto.
El edificio de servicios generales se sitúa entre las dos conjuntos residenciales. 
Estos edificios residenciales se elevan sobre el terreno, mientras que los edificios de servicios generales integrados en el proyecto se sitúan bajo la rasante.
 
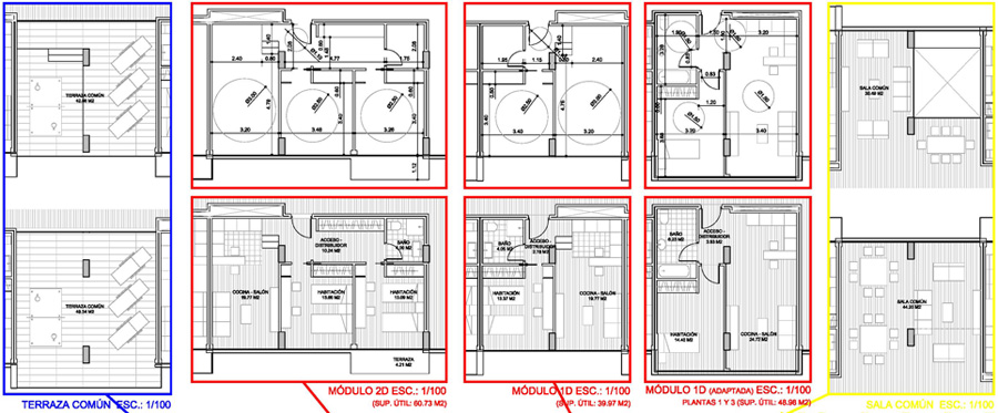
Unidades residenciales:
El área residencial se compone de dos conjuntos compuestos, a su vez, de dos unidades. Éstas se relacionan e interactúan a través de los núcleos de comunicación vertical que se convierten, por medio de pasarelas de conexión, en espacios de comunicación horizontal.
 
La organización interna de cada una de estas cuatro unidades parte de la unión de elementos que utilizan una base común pero que se diferencian según sus propias necesidades, de forma que el conjunto final es heterogéneo.
La retícula estructural de los edificios sirve de base de poyo para la disposición de las viviendas.
Existen viviendas de 2 y 3 dormitorios que se disponen adaptándose y maclándose de forma fluida y sencilla.
El juego de volúmenes interiores y el movimiento en las fachadas singulariza cada elemento que parte un módulo base común.
Las piezas se agrupan y encajan cada dos plantas del edificio, de manera que el movimiento organizado del forjado divisorio hace que, en la planta inferior se varíe la altura de los techos para crear ambientes diferentes y, en la planta superior, este efecto se consigue con la variación de los niveles de los suelos.
Algunos de los módulos se vacían para conformar espacios comunes de relación, zonas de acceso desde la rampa, miradores, áreas de descanso y esparcimiento. Estas piezas también participan del movimiento volumétrico con la utilización de dobles alturas y variaciones de niveles de suelos y techos
La fachada de cada módulo se individualiza, igualmente, mediante la prolongación de sus cerramientos (forjado inferior, superior o paredes laterales). Estas prolongaciones serán, según el caso, un balcón, un alero, una prolongación de la fachada acristalada…
Las sombras y los colores serán otros de los elementos que contribuyan a la combinación y expresión de los volúmenes que componen cada una de las unidades residenciales. 
Los desniveles interiores, las dobles alturas, los vacíos para zonas de relación y los movimientos en fachada son elementos utilizados para la consecución de un espacio de residencial diferente. 
Los elementos modulares se combinan formando piezas que encajan y crean vacíos internos para crear espacios de relación y de servicios del edificio.
Las plantas bajas, de gran altura libre, son diáfanas. Se pretende una relación cómoda de todos los espacios a nivel de calle que solo se vea interrumpida, puntualmente, por pequeñas instalaciones independientes que albergarán usos complementarios.
El área correspondiente a los pares de unidades residenciales se utiliza, en planta sótano, para realizar los aparcamientos y locales de servicio interno.
Instalaciones de usos complementarios:
Situados de forma independiente y aleatoria, bajo las unidades residenciales, se disponen volúmenes que albergan usos complementarios necesarios para el funcionamiento interno del campus y entorno, como pueden ser: sucursal bancaria, kiosko, oficinas, lavandería, gimnasio, cafetería, aulas…
El color será parte de este juego compositivo y diferenciará cada uno de estos elementos.
 
Servicios generales:
El espacio central de la zona de intervención se configura como el nexo de unión de los dos conjuntos y punto central en el funcionamiento interno tanto del área residencial como del Campus.
Intentando no interferir visualmente en el entorno, adaptándose a la rasante del terreno, se crea un nuevo espacio verde interior, recogido, íntimo, y las áreas de estudio e informática se abren a él.
En esta zona, donde estudio y naturaleza se relacionan íntimamente, se sitúan igualmente zonas de descanso y esparcimiento para los estudiantes.
El acceso a la zona verde interior, así como al edificio de servicios, se realiza de forma cómoda y fluida a través de rampas que relacionan los tres niveles con el entorno. De esta forma se conjugan; la planta baja del edificio de servicios (situada a cota con la zona arbolada y la planta de acceso del edificio residencia sur), la planta primera del edificio y la planta de cubiertas (situada a cota del terreno del edificio residencia norte).
Las dobles alturas relacionan las plantas interiores del edificio de servicios, de manera que las salas están conectadas a través de la fachada común acristalada que da frente a la zona arbolada. Los “brise soleil” de la fachada, con orientación sur, protegerá el interior del sol y garantizará la luminosidad interior.
 
Share:

Proyectos relacionadosPuede que también esté interesado en estos proyectos.